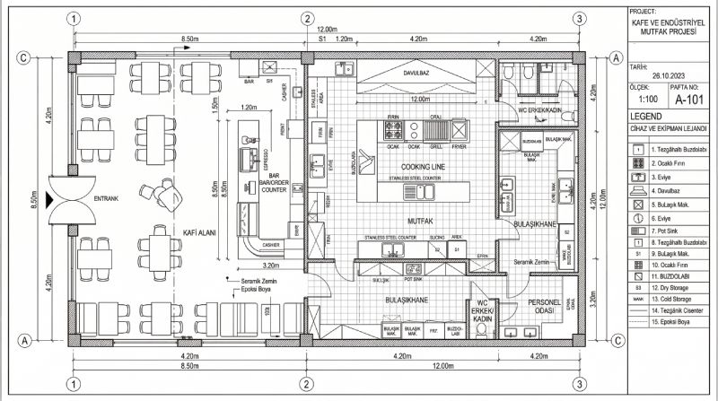
Endüstriyel Mutfak Projesi Nedir, Neden Profesyonel Destek Gerekir?
Endüstriyel mutfaklar dışarıdan bakıldığında klasik bir mutfak gibi görünse de aslında arka planda bir üretim tesisi mantığıyla çalışır. Burada her ekipmanın, her yerleşimin ve her iş akışının belirli bir amacı vardır. Çünkü endüstriyel mutfaklarda hedef yalnızca yemek hazırlamak değil; hızlı, düzenli, verimli ve sürdürülebilir bir operasyon oluşturmaktır.
Bu nedenle bir endüstriyel mutfak projesi, yalnızca ürün seçmekten ibaret değildir. Doğru planlanmamış bir mutfak, zaman kaybına, gereksiz maliyetlere, iş gücü verimsizliğine ve operasyonel aksaklıklara neden olabilir. Profesyonel olarak hazırlanmış bir proje ise işletmenin günlük işleyişini kolaylaştırır, kapasitesini artırır ve uzun vadede çok daha sağlıklı bir yatırım yapılmasını sağlar.

Endüstriyel mutfak neden bir üretim tesisi gibi düşünülmelidir?
Restoranlar, oteller, kafeler, pastaneler, yemekhaneler ve birçok profesyonel işletme için mutfak, işin kalbinin attığı yerdir. Ancak bu alanlar sadece yemek pişirilen yerler değildir. Ürün kabulünden depolamaya, hazırlık alanından pişirmeye, servisten temizliğe kadar her adımın bir düzen içinde ilerlemesi gerekir.
Yani endüstriyel mutfakta amaç, rastgele bir yerleşim oluşturmak değil; belirli bir çalışma şemasına göre kusursuz işleyen bir sistem kurmaktır. Bu sistem ne kadar doğru kurgulanırsa, işletme o kadar hızlı, düzenli ve verimli çalışır.
Endüstriyel mutfak projelerinde temel amaç nedir?
Bu tür projelerde en önemli hedef her zaman yüksek verimlilik ile fiyat-fayda dengesini korumaktır. Yani sadece pahalı ekipmanlar seçmek değil, işletmenin ihtiyacına en uygun çözümleri belirlemek gerekir.
Her işletmenin konsepti, günlük üretim kapasitesi, servis yoğunluğu, personel sayısı ve çalışma şekli farklıdır. Bu nedenle her mutfak projesi de kendine özgü olmalıdır. Doğru ihtiyaç analizi yapılmadan seçilen ekipmanlar, işletmeye fayda sağlamak yerine ekstra maliyet ve alan kaybı yaratabilir.
Tam da bu noktada profesyonel destek büyük önem taşır. Çünkü ihtiyaçların doğru belirlenmesi, buna uygun ekipmanların seçilmesi ve en verimli yerleşim planının oluşturulması uzmanlık gerektirir.
Sadece işin görünmeyen kısmında değil, misafirlerinizin gördüğü ön tarafta da özel üretim tezgah, size özel üretilmiş teşhir ekipmanları ile görseli kuvvetli bir sunum olanağı sağlamaktadır.
Neden profesyonel destek alınmalıdır?
Endüstriyel mutfak projeleri, deneyim ve teknik bilgi gerektiren süreçlerdir. Sadece ürün kataloglarına bakarak veya genel bir fikirle doğru mutfak düzenini kurmak çoğu zaman mümkün olmaz. Çünkü burada önemli olan, ürünleri tek tek seçmek değil; tüm mutfağın bir bütün olarak uyum içinde çalışmasını sağlamaktır.
Profesyonel destek sayesinde:
- İşletmenizin ihtiyaçları doğru analiz edilir.
- Özel üretim ürünlerde doğru kalite elde edilir.
- Gereksiz yatırımların önüne geçilir.
- Alan kullanımında maksimum verim elde edilir.
- İş akışı hızlanır ve personel çalışma konforu artar.
- Uzun vadede daha verimli ve sürdürülebilir bir mutfak yapısı kurulur.
Doğru planlanmış bir mutfak, sadece bugünün ihtiyaçlarını karşılamakla kalmaz; gelecekteki büyüme ve operasyonel değişimlere de daha kolay uyum sağlar.

Cafemarkt Olarak Endüstriyel Mutfak Projelerinde Neler Yapıyoruz?
Cafemarkt olarak endüstriyel mutfak projelerini yalnızca ürün tedariği olarak görmüyor, işletmenizin ihtiyaçlarına özel bütüncül çözümler sunuyoruz. Sizler için en uygun ürünlerin seçimini yaparken, danışmanlık hizmetlerimizle, standart ve özel üretimlerimizle mutfakların bir ahenk içinde çalışmasını sağlıyoruz.
Projelendirme sürecinde;
- İhtiyaç analizi yapıyor,
- İhtiyaçlarınıza göre üretim yapıyor
- İşletmenize uygun ekipmanları belirliyor,
- Mutfak düzenini operasyonel verimliliğe göre planlıyor,
- Yerleşim planını en doğru şekilde oluşturuyor,
- Gerekli durumlarda özel imalat ürün çözümleri sunuyoruz.
Özel imalat ürünlerden mutfak düzenine, ekipman seçiminden yerleşim planına kadar tüm süreci sizin adınıza titizlikle planlıyoruz ve üretiyoruz. Ekipmanlar için verdiğimiz danışmanlıklarda ise mutfağınızı en modern, en işlevsel ve en verimli biçimde düzenlemeyi hedefliyoruz.
Doğru Proje, Güçlü İşletme
Başarılı bir endüstriyel mutfak, tesadüfen oluşmaz. Doğru analiz, doğru ekipman, doğru yerleşim ve doğru planlama ile ortaya çıkar. Bu nedenle profesyonel destek almak, sadece bir kolaylık değil; işletmenin geleceği için önemli bir yatırımdır.
Cafemarkt olarak, her işletmenin ihtiyacının farklı olduğunun bilinciyle hareket ediyor, projelerinizi hem teknik hem de operasyonel açıdan en doğru şekilde kurgulamanıza destek oluyoruz. Çünkü biliyoruz ki iyi planlanmış bir mutfak, başarılı bir işletmenin temel taşlarından biridir.